Lưu trữ danh mục: Blog

5 điều đại kỵ trong phong thủy nhà bếp, điều thứ 3 nhiều nhà mắc phải

Phòng bếp được ví như trái tim của ngôi nhà. Nếu phòng bếp phạm phải...

Chuyên gia phong thủy gợi ý cách bày trí phòng ngủ hợp mệnh gia chủ

Phòng ngủ là một nơi không thể thiếu trong mỗi căn nhà. Để có được...

Sắm ngay loạt kệ trang trí phòng khách ‘đẹp ngất ngây’, ‘xịn chất’ ai cũng mê

Những chiếc kệ trang trí phòng khách có thể ‘hô biến’ một khu vực vốn...

Xu hướng trang trí nội thất năm 2021

Mỗi năm sẽ có những ý tưởng để trang trí nội thất giúp nhà cửa...

Ứng dụng gỗ MFC trong đời sống

Là một loại gỗ công nghiệp với nhiều ưu điểm nên gỗ MFC được sử...

Cách trang trí phòng khách nhà cấp 4 ấn tượng

Trang trí phòng khách nhà cấp 4 không chỉ thể hiện được lối sống, gu...

Nội thất giá rẻ – giải pháp tiết kiệm chi phí thời hậu Covid-19

Trong thời buổi nền kinh tế khó khăn, dịch bệnh hoành hành khiến nhiều người...

14 lưu ý về phong thủy phòng ngủ cho cặp đôi mới cưới

Chú ý tới phong thủy trong trang trí nhà cửa sẽ mang lại một cuộc...

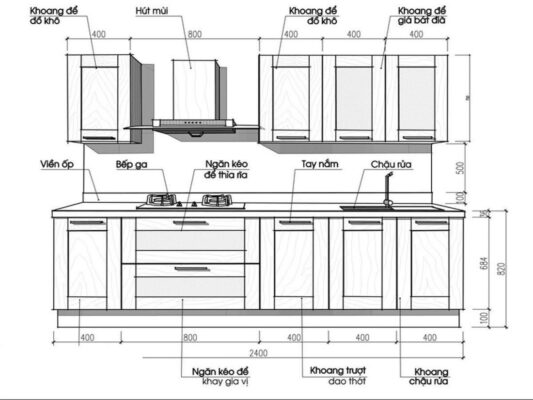
Kích thước tủ bếp tiêu chuẩn hiện nay

Tủ bếp là một phần quan trọng trong không gian phòng bếp của gia đình...

Thiết kế tủ bếp chữ L cho nhà bếp hiện đại

Phòng bếp là nơi đáp ứng được vai trò nấu nướng lại vừa tạo cảm...

So sánh ưu, nhược điểm của các loại chất liệu phủ bề mặt gỗ tủ bếp

Lựa chọn chất liệu phủ bề mặt nào cho tủ bếp luôn là vấn đề...

7 bài học cuộc sống quý giá từ Albert Einstein

Như một lẽ thường tình, mỗi người xuất hiện lại nhìn vạn vật theo một...

Tấm Acrylic và ứng dụng trong thiết kế nội thất

Acrylic là vật liệu bề mặt được dùng phổ biến trong thiết kế nội thất với đặc...

Bí kịp giúp căn phòng bếp nhỏ cũng hóa rộng thênh thang

Phòng bếp nhỏ của bạn sẽ trở nên rộng rãi và cuốn hút hơn hẳn...

Gỗ Melamine là gì và ứng dụng ra sao?

Vật liệu bề mặt melamine được sử dụng nhiều trong nội thất gia đình, văn...

Gian bếp tiện nghi nhờ 3 phụ kiện cần thiết

Các phụ kiện chuyên dụng cho tủ dưới, tủ góc và tủ treo giúp lưu...

Thiết kế nhà bếp chuẩn kiến trúc sư

Theo KTS Nguyễn Minh Đức tiêu chí cơ bản để lựa chọn và thiết kế...

Laminate là gì? Ưu điểm và ứng dụng ra sao?

Vật liệu bề mặt gỗ công nghiệp Laminate thích hợp không gian kiến trúc hiện...

Căn hộ Officetel là gì? – Định nghĩa và ưu nhược điểm?

Thị trường bất động sản thời gian gần đây đang có một xu hướng mới...

Catalogue Mẫu in Tranh Kính Cường Lực 3D Ốp Bếp

Trong cuộc sống ngày nay, kính ốp bếp là vật liệu được khá nhiều gia đình lựa...